This marker is used to identify Public Open Space owned by the City of Shelton. It does not mark the exact location of the property line and may be as much as 100 feet away from the boundary, depending on site conditions. The Conservation and Pedestrian Easements markers have a similar look but different text.

The Land Trust is a private, non-profit group that owns 364 acres of open space in Shelton, marked with these signs. People frequently confuse the Land Trust with the City of Shelton.
These rectangular wetlands marker may be found in some newer subdivisions, usually on 4x4 posts. They mark the location of areas regulated by the Shelton Inland Wetlands Commission. These are generally on private property and are not related to open space.
These two open space properties are used most by fishermen in the spring, since the Far Mill River is stocked with trout. There is no officially designated parking area, so people must park along the side of the Beard Sawmill or Farmill Crossing.
Pedestrian access to OS 85.01 (see map below) is along Beard Sawmill Road near the Route 8 overpass. Access to the larger OS 85.02 (Well Spring) is via an old driveway from Farmill Crossing (unauthorized vehicles prohibited).

Well Spring open space (82.02) contains an old corn crib.
Farmill Crossing is in the background.

This gravel road behind the new Well Spring Estate subdivision is on
public open space and leads toward the location of the former old
bridge.

Enlarge photo to see old bridge abutments. A sawmill owned by the Beard
family once operated in this area (which is why the nearby road at Wells
Hollow Farm is called "Beard Sawmill Road").

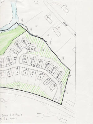
Detail map of OS 85.02 (left side)

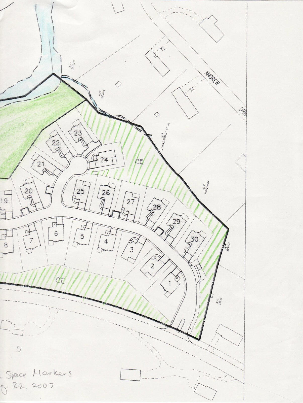
Detail map of OS 85.02 (right side). The green striped areas are
privately-owned conservation easement areas (not open to the public).